
Zařízení na odvodnění kalu Stainless Sacker slouží k odvodňování primárního a stabilizovaného aktivovaného nebo smíšeného kalu. Princip odvodnění kalu spočívá v dávkování polymerního flokulantu do kalu, který se po smísení s flokulantem vysráží a následně filtruje přes filtrační pytle. Zahuštěný kal zůstává uvnitř pytlů a filtrát je odváděn zpět do denitrifikace. Zařízení je velice jednoduché, provozně spolehlivé, investičně nenáročné a nachází uplatnění na všech čistírnách odpadních vod, kde je třeba levně a účinně vyřešit nakládání s kalem. Produkovaný zahuštěný kal má ve srovnání s nezahuštěným stavem po dvanácti hodinách až 20krát menší objem.
![]() |
![]() |
|
| zařízení Stainless Sacker S3 | zařízení Stainless Sacker S4 |
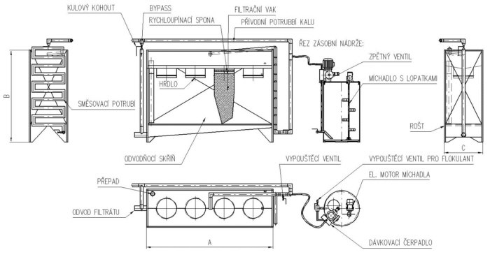
Zařízení se skládá z odvodňovací skříně s hrdly pro upnutí filtračních pytlů pomocí rychloupínacích spon, dále z dávkovacího zařízení polymerního flokulantu, přívodního potrubí kalu, kalového čerpadla a směšovacího potrubí. Z kalové nádrže je kal přiváděn pomocí čerpadla přes směšovací potrubí do odvodňovací skříně. Do směšovacího potrubí je dávkován polymerní flokulant, jehož účinkem se kal začne srážet do vloček a tento vysrážený kal je přiveden do odvodňovací skříně a hrdly se dostává do filtračních pytlů. Filtrační pytle stojí na roštu, přes který odtéká filtrát potrubím zpět do denitrifikace. Skříň je vybavena sondou pro hlídání hladiny a je vybavena přepadem pro případ poruchy. Dávkovací zařízení polymerního flokulantu zahrnuje zásobní nádrž s míchadlem a dávkovacím čerpadlem. Chod zařízení a konec cyklu je signalizován kontrolním světlem na rozvaděči.
![]() |
| schéma zařízení Stainless Sacker |
Odvodňovací skříň, zásobní nádrž na flokulant, hřídel míchadla s lopatkami a rychloupínací spony jsou vyrobeny z korozivzdorné austenitické chrom-niklové oceli jakosti 1.4301 (dle ČSN se jedná o ocel 17 240). Přívodní a směšovací potrubí je vyrobeno z polypropylenu.
| Typ | Počet pytlů | Množství zpracovaného kalu [m3] |
Maximální kapacita ČOV |
|---|---|---|---|
| S3 | 3 | 3 - 4,5 | 500 EO |
| S4 | 4 | 4 - 6 | 1000 EO |
| S6 | 6 | 6 - 9 | 1500 EO |
![]() |
![]() |
|
| zařízení Stainless Sacker S3 v provozu | kal odvodněný po 12 hodinách |